1、登录PlusBIM建筑云平台

2、登录之后在弹出来的个人中心页点击前往云沟通

3、云沟通的主界面展示

1、账号有关操作—点击右上角小箭头

1.1、点击第一项可以切换工作角色
1.2、点击第二项可以查看当前账号的信息

1.3、点击第三项可以修改当前账号的手机号

1.4、点击第四项后可以退出当前账号的登录状态
2、界面下侧所提的意见列表—左下饼状图为所提意见(轻微,一般,严重)的比例

2.1、点击饼状图下方的按钮之后可以进行联合筛选

3、界面中部—当前账户的使用情况(空间用量,问题数,项目数,文件数

4、当有成员在项目意见中@您或者有成员文件上传后,右上角将会显示通知

1、在主界面中来到项目数据处点击新建项目(或者点击这个项目数据在新弹出的页面中新建项目)
1.1、对于上传的之后的文件有转换完成与未完成区分(左图未完成 右图已完成)

2、在弹出来的询问框中可以写入项目名称以及项目编号

1、在主界面中来到文件数据处点击上传文件或者点击项目数据在弹出的界面中选择文件上传
2、在弹出的对话框中可以选择点击选择文件上传,或者直接拖拽文件进对话框进行上传(可多文件一起上传但上传文件不能重复)

3、选好后点击立即上传即可(上传之后如果空间的剩余容量不够会提示空间不足)

4、上传成功后在项目列表中可以看见自己上传的文件

5、点击右上角的三个小点可以对文件进行操作

6、点击移动可以在弹出的对话框中选择将文件移动到我们创建的项目之中(如果实在项目内使用的文件上传,默认会在该项目下)

1、界面一览
2、点击右侧的切换功能可以在列表显示和大图显示之间进行切换
3、点击BI数据大屏可以对数据进行统计

4、左上角可以对现有的项目以及文件图纸进行筛选功能
5、项目邀请成员(点击项目右上角的三个小点后点击成员)

5.1、在打开的界面中可以看见当前项目中的所有成员

我们点击邀请成员后可以打开邀请界面(我们可以先完善信息)

完善后我们可以点击生成邀请链接

这样我们就获得了当前项目的邀请链接
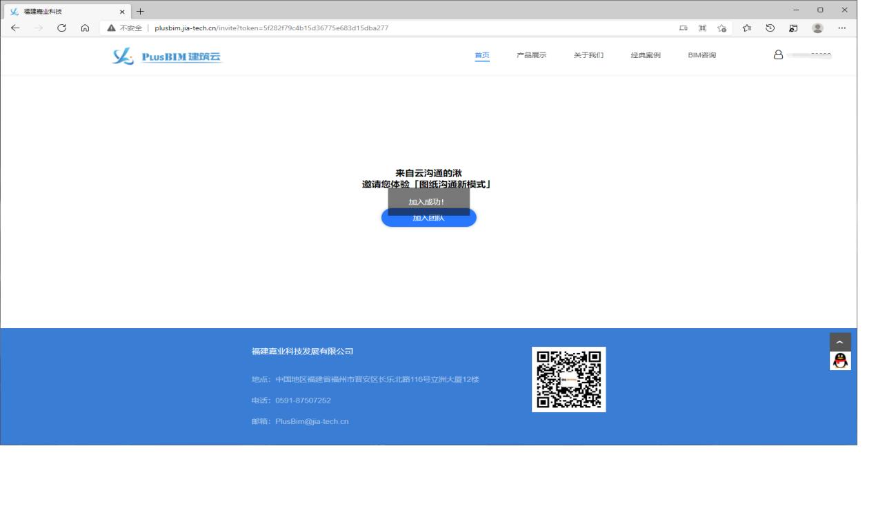
5.2、我们登录平台其他账号后在浏览器地址粘贴这条分享链接后打开
点击加入团队后就可以加入到项目中了

在控制台也可以看见加入的项目

刚才我们给了测试成员评论权限但是没有给文件上传权限

在项目中是没有文件上传按钮的

但是在权限中我们有增加意见权限所以我们可以增加校审意见
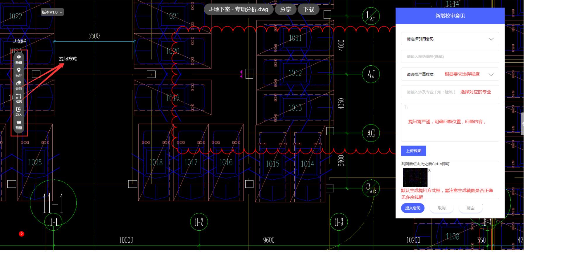
1、对项目内上传的图纸文件我们可以点击进入查看页面
2、左侧第一个按钮显示/隐藏,我们可以对已经添加的意见进行一个显示隐藏的操作

3、点击标记后再点击图纸的一个位置我们可以呼出添加意见面板
4、在弹出的意见面板里,我们可以对该条意见进行一个编辑操作(如:意见标题,意见严重程度,涉及专业,以及意见内容,上传截图等)

5、在意见内容里我们还可以通过输入@键去提醒某个项目成员
6、新增后的校审意见可以在当前图纸的右侧打开进行查看
7、我们可以在搜索栏上侧通过直接搜索或者右上的分类搜索来筛选自己想找的意见
8、点击意见右侧箭头,我们可以看到该条意见的内容
9、点击该条意见后我们可以对这条意见进行回复(点击确定后我们可以看见回复的内容)
10、点击该项意见右侧的三个点可以对该条意见进行操作
11、返回工作台界面可以看见在下方已经出现了添加的意见,已经该意见所属的项目和该意见的严重程度,对应的图纸名称,直接点击该名称可以直接来到图纸页面
1、点击pdf对应的图纸可以打开pdf的图纸沟通
2、上方可以对该图纸进行分享操作

3、鼠标双击pdf的某处可以对该处增加校审意见

4、新增后的校审意见同样可以再工作台界面看到
